Beschreibung
Zündorf ist einer der gefragtesten rechtsrheinischen Kölner Stadteile. Die Lage am Rhein mit der beliebten Freizeitinsel GROOV, dem Charme des historischen Ortskerns mit alten Fischerhäusern, den netten Lokalen sowie der idealen Anbindung nach Köln mit der Straßenbahn-Linie 7 sind besonders hervorzuheben. Die Endhaltestelle ist bequem zu Fuß erreichbar, desgleichen Einkaufsmöglichkeiten, Banken und Schulen.
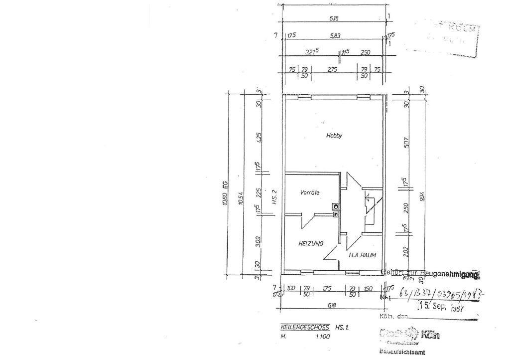
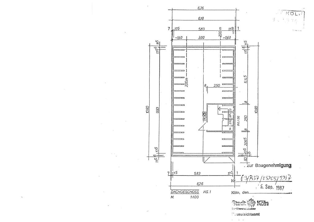
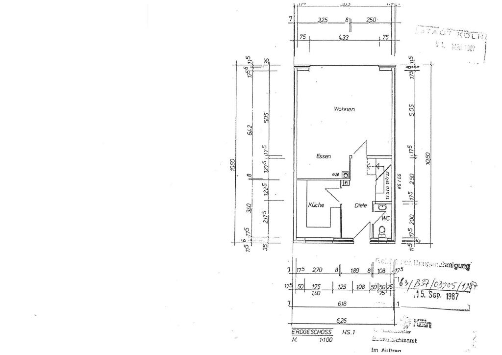
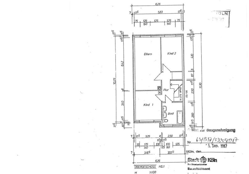
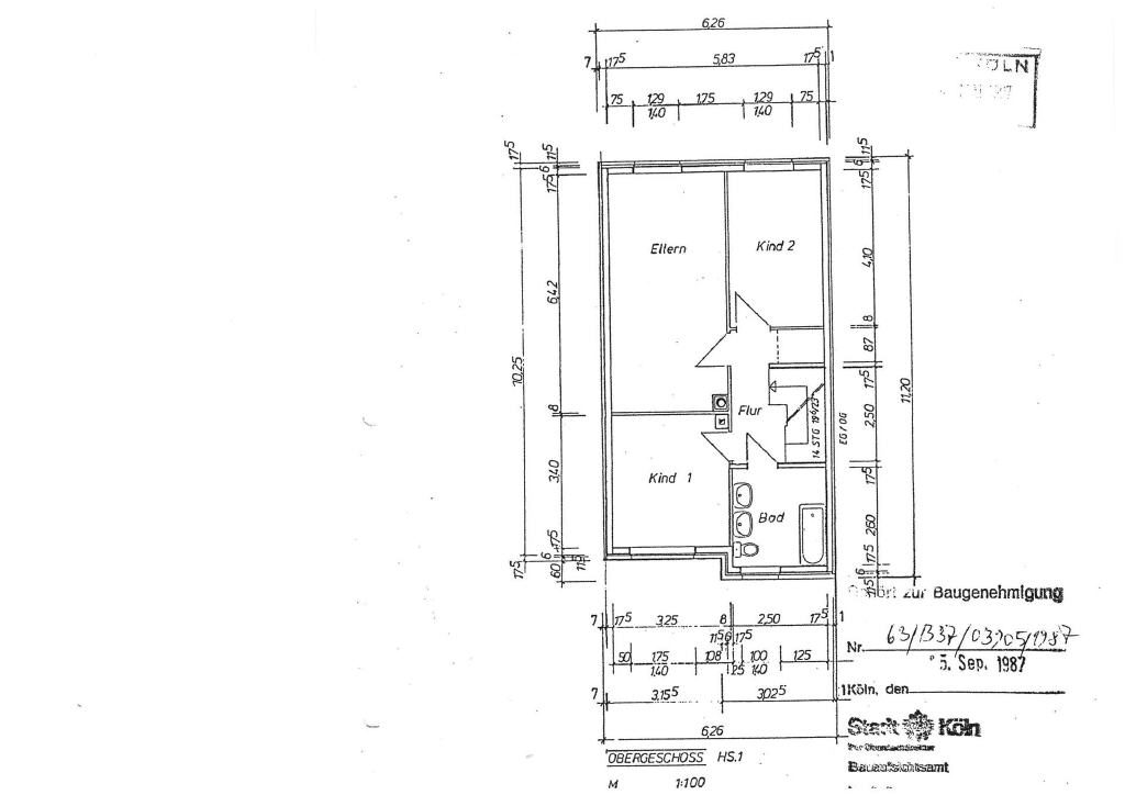
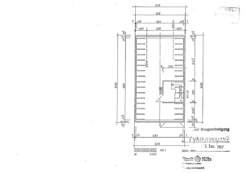
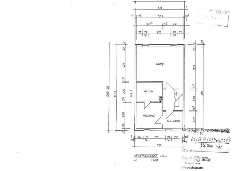
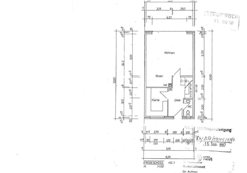
Die hier angebotene verklinkerte Eckhaus einer 3-er-Gruppe ist äußerst gepflegt und verfügt über ca.113 m² Wohnfläche in Erd- und Obergeschoss (inkl. Terrasse zu 25 %). Das Dachgeschoss ist zum Ausbau vorbereitet (Treppe, Isolierung der Dachfläche, Leitungen bis in das DG, schwimmender Estrich, große Fenster) und würde z. B. ein großes Studio und ein zusätzliches Bad mit insgesamt ca. 38 m² Wohnfläche ermöglichen. Die Hälfte davon ist in die Wohnfläche eingerechnet. Im Keller wurde der Hobbyraum als Sportstudio genutzt. Die Ausstattung ist mehrfach modernisiert worden. Der Heizkessel wurde in 2008 erneuert. Das Bad im OG wurde 2010 modernisiert. Die Bodenbeläge wurden ebenfalls erneuert (Laminat).
Zum Haus gehört eine großzügige Doppelgarage und eine sehr gepflegte Gartenanlage in Westausrichtung mit großer Terrasse und einem Feigenbaum. Die Immobilie wird von der Verkäuferin bewohnt und nach Vereinbarung frei, spätestens zum Ende 2026, evtl. aber auch früher. Die Verkäufer wünschen nach Notartermin eine Anzahlung auf das lastenfreie Objekt.
Energieausweis: Energieverbrauch 50,8 kWh / B / Erdgas / BJ 1987 – 2008